エリア・駅


賃料

間取り

専有面積

築年数

物件種別

絞り込み条件

喜多見戸建 1111

28万 / 管理費等 なし

賃料 28万円
共益費 なし
敷金 / 礼金 2ヶ月 / 1ヶ月
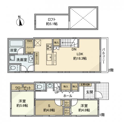
間取 2SLDK (東)
面積 86.84㎡ (52.46帖)
築年月 2022年9月(築3年)
所在階 1階 / 2階建
部屋向き

担当者より


設備 食器洗い乾燥機・都市ガス・2面採光・バルコニー・ベランダ・フローリング・冷暖房・冷房・暖房・照明器具・システムキッチン・IHクッキングヒータ・コンロ2口以上・対面キッチン・コンロ3口以上・追い焚き・シャワー・浴室換気乾燥機・水道(公営)・バス(専用)・バス・トイレ別・暖房便座・温水洗浄暖房便座・トイレ・トイレ(専用)・室内洗濯置場・独立洗面台・シャンプードレッサー・排水(下水)※・シューズボックス・クローゼット・クロゼット2ヶ所・クロゼット3ヶ所・郵便受け・インターホン・TVインターホン
周辺施設 喜多見こどもの家 200m 喜多見小学校 喜多見中学校 522m 科学技術学園高等学校 1063m スーパー 172m コンビニ 641m
保証会社 利用必須 / /  保証会社 要:初回 賃料総額100%+月額 賃料総額2%(最低1,000円)
住宅保険料
契約形態 普通借家・ 契約期間 24ヵ月
取引態様 媒介
入居可能日 相談
入居条件
その他の入居条件 リロサポ加入必須1500円(月額) 2024110029/退去時は、借主負担にてハウスクリーニング実施(当社手配)/リロサポ加入必須(月額1500円) ※6ヶ月未満で解約した場合、賃料の0.5ヶ月分を申受けます。【全ての特約が記載できない為、必ず最新の物件
その他初期費用 駐車場登録料 1台(利用時のみ) 11,000円 除菌施工料(契約時のみ) 19,800円
仲介手数料:賃料1ヶ月分+消費税
その他月額費用
退去時費用 退去費用実費精算
※故意又は過失による汚損・破損は別途費用がかかる場合がございます。
備考
建物名 喜多見戸建
駐車場 敷地内あり (無料)
物件種別 一戸建て
建物構造 木造
総戸数
物件番号 19460431

お問い合わせ

印刷(PDF)

※掲載されている物件データが現況と異なる場合は現況を優先します。

※弊社は予約優先です。予約のない方はお待ちいただく場合がございます。事前予約の方は、ご案内含め全てスムーズに進みます。

情報公開日:2025/07/04
更新予定日: